Exzellente ÖPNV-Anbindung 
Willy-Brandt-Platz:
U-Bahnen U1, U2, U3, U4, U5, U8, 
Straßenbahnen 11, 12, 14, 22
Hauptwache: S-Bahnen S1, S2, S3, S4, S5, S6, S8, S9
HERZLICH WILLKOMMEN
Transition 
to green
        Im Herzen Frankfurts entsteht ein neues Wahrzeichen urbaner Eleganz : URBNCBD. Das Konzept für die komplexe Sanierung dieser außergewöhnlichen Büroimmobilie in der Bethmannstraße 50 + 52 kombiniert auf beeindruckende Weise modernste Erkenntnisse nachhaltigen Bauens mit einer erstklassigen Konzeption für zukunftsweisende, ökologisch optimierte Büroflächen.
URBNCBD wird Flächen in Neubauqualität bieten, die perfekt auf die Anforderungen moderner Unternehmen zugeschnitten sind. Gegenüber einem Neubau werden jedoch circa 8.450 Tonnen CO2 eingespart. Damit setzt URBNCBD neue Maßstäbe in der Mainmetropole.
URBNCBD
 
                        Welcome to
URBNCBD
ADRESSE
- Bethmannstraße 50 + 52, 60311 Frankfurt am Main
NUTZUNG
- Office und Retail
MIETFLÄCHE
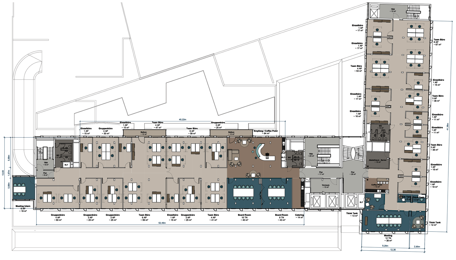
- Gesamt ca. 10.645 m2
FOYER
- Foyer mit etwa 5 m Höhe und Barista-Bar
- 24/7 besetzter Empfang
KFZ-STELLPLÄTZE
- Parkhaus Kaiserplatz mit bis zu 332 Stellplätzen
- Exklusive Parkplatzkontingente für Mieter mit direktem Zugang zum Gebäude
- E-Ladestationen
FAHRRAD-STELLPLÄTZE
- FahrradLoft mit ebenerdigen Fahrrad-Stellplätzen für Mieter im Parkhaus Kaiserplatz
- Duschen und Umkleiden für Mieter
ARCHITEKTUR
- holger meyer gmbh
GENERALPLANER
- Lang & Cie. Real Estate AG
URBNCBD
Ein dynamischer
und agiler Standort
        URBNCBD befindet sich in der Bethmannstraße, mitten im Herzen der Stadt, und verbindet
das Beste aus Business, Freizeit und Kultur. Der Standort bietet zahlreiche Vorteile:
 
Zentrale Lage: Direkt an der Schnittstelle von Business, Banking, Shopping, Freizeit und Kultur.
Lebendiges Umfeld: Eingebettet in das pulsierende Stadtleben mit kosmopolitischem Flair.
Vielfältige Gastronomie: Zahlreiche internationale Restaurants und Bars in unmittelbarer Nähe.
Erstklassige Unterkünfte: Luxuriöse Hotels für Geschäftsreisende und Besucher.
Vielfältige Shoppingmöglichkeiten: Ein bunter Mix aus Lifestyle- und Einkaufsoptionen.
Gute Erreichbarkeit: Alle wichtigen Hotspots der Stadt sind in wenigen Schritten erreichbar.
 
                    Kurze Wege
Main, Römer, Zeil, Museen bequem zu Fuß erreichbar
Taxi-Halteplatz
Frankfurter Hof in der Bethmannstraße
Großes Stellplatzangebot
in unserem eigenen Parkhaus Kaiserplatz
Inhouse-FahrradLoft
mit Easy Access
URBNCBD
Office
Key Facts
        FLEXIBLES ACHSRASTER:
0,85 M
KLEINSTE BÜROEINHEIT:
CA. 12,6 M²
LICHTE RAUMHÖHE: 
CA. 2,80 M,
MAX. GEBÄUDETIEFE: 
CA. 13,70 M
AUSSEN LIEGENDER SONNENSCHUTZ
WETTERABHÄNGIGER STEUERUNG
BODENTIEFE FENSTER
MIT 3-FACH ISOLIERVERGLASUNG
IN JEDER 3. FENSTERACHSE ÖFFENBARE FENSTER MIT DREH- UND KIPPFUNKTION
ZENTRALE LÜFTUNGSANLAGE FÜR BÜRO- UND KONFERENZBEREICHE
HEIZ- UND KÜHLDECKEN,
MAX. KÜHLLEISTUNG 75 W/M²
IDEALES
RAUMKLIMA
ENERGETISCH HOCHEFFIZIENTE 
LED-BELEUCHTUNG
HOHLRAUMBODEN / DOPPELBODEN, CA. 5,5 CM AUFBAUHÖHE, ENTLANG DER FASSADE EINREIHIGER DOPPELBODENSTREIFEN ALS INSTALLATIONSSTRASSE
BÖDEN IN DEN BÜROFLÄCHEN MIT TEPPICHBAHNEN ODER FLIESENWARE (TOUCAN-T, OBJECT CARPET)
HERVORRAGENDE
RAUMAKUSTIK
DEZENTRALE ETAGENVERTEILER MIT CAT-7-VERKABELUNG
MOBILFUNK-VORRÜSTUNG, WLAN-ACCESS-POINTS UND HIGHSPEED-INTERNET MIT GLASFASERANBINDUNG
Ein Office,
das begeistert
        Wer von seinen Mitarbeitern Bestleistungen erwartet, sollte ihnen mehr bieten als nur einen Arbeitsplatz. Ein ansprechendes Ambiente, moderne Ausstattung und eine erstklassige Lage schaffen ein Umfeld, das inspiriert und zur Entfaltung einlädt. Denn echte Motivation entsteht dort, wo Menschen gerne arbeiten.
Angestrebte Zertifizierungen:
KONTAKT
Monica Ann Sibler
M: +49 172 9166 482
E-Mail: ma.sibler[at]urbn-cbd.com
 
                 
                            
                         
                            
                         
                            
                         
                            
                         
                            
                         
                            
                         
                            
                         
                            
                         
                            
                         
                            
                         
                            
                         
                            
                         
         
                                 
                                 
                
                